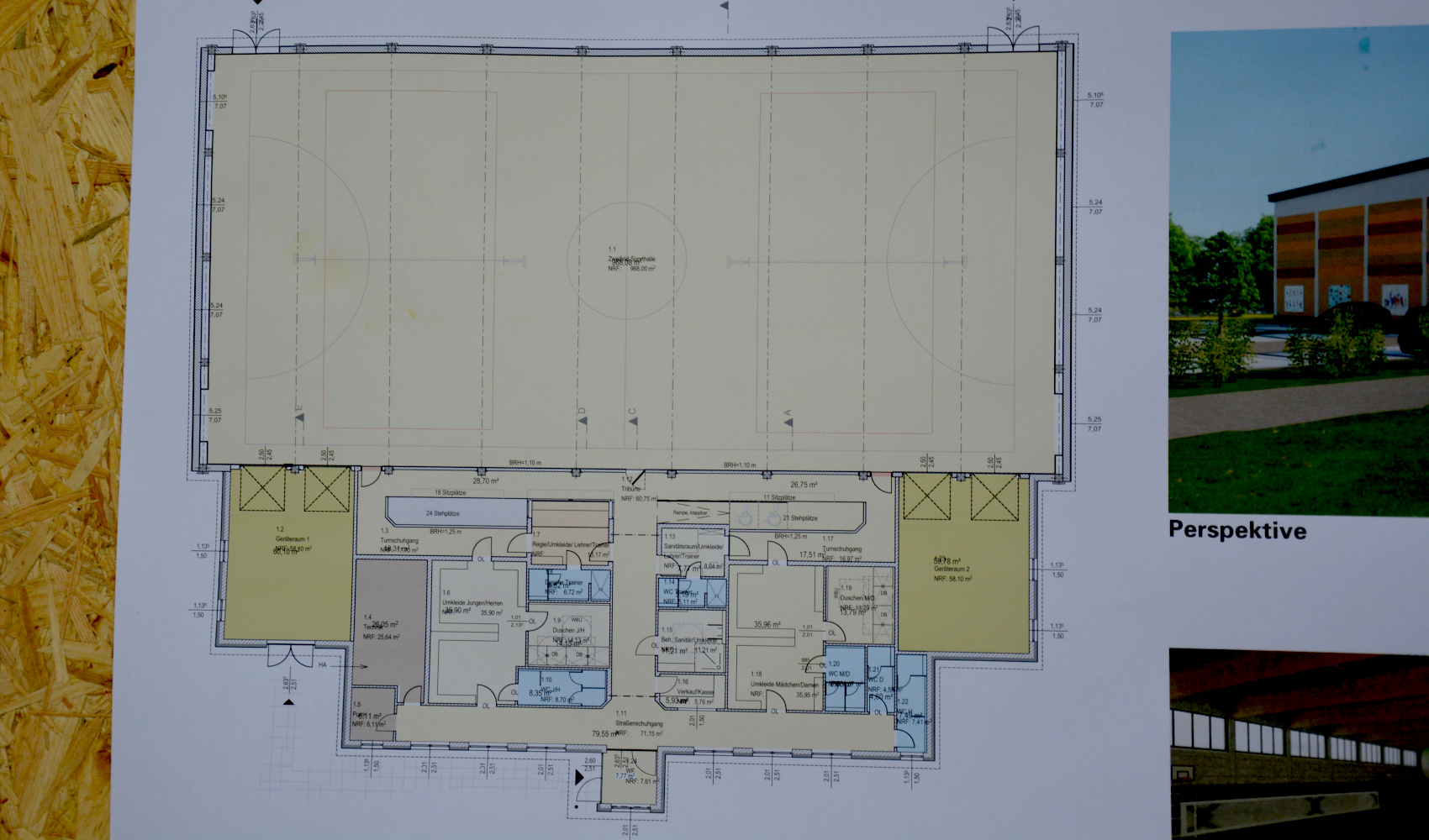
24.01.2025 - Schlüsselübergabe für den Ersatzneubau der Zweifeld-Sporthalle in Sukow
Der Bürgermeister H.-D. Keding zur Einweihung der Zweifeld-Sporthalle in Sukow mehr erfahren... (JPG)
Die Presse berichtet über die Einweihung der Zweifeld-Sporthalle in Sukow.
NDR 1 Radio MV | Regionalnachrichten aus Schwerin | 24.01.2025 | 12:40 Uhr
(Externer Link) hier mehr erfahren...
Video auf YouTube hier ansehen... (externer Link)
14.07.2024 - Baufortschritt Ersatzneubaus der Zweifeld-Sporthalle in Sukow
26.04.2024 - Fotoimpressionen vom Richtfest des Ersatzneubaus der Zweifeld-Sporthalle in Sukow
25.10.2023 - Fotoimpressionen von der Grundsteinlegung für den Ersatzneubau der Zweifeld-Sporthalle in Sukow
